Kick Game’s Retail Rollout: Designing and Delivering 8+ Stores Across the UK and Europe.
%20copy.jpg)
Kick Game was referred to us by another client in 2020 as they sought an agile retail partner to support their bricks-and-mortar expansion. Their vision was to create a modern, premium retail experience that could be rolled out nationally — and now, internationally.
Since then, we’ve partnered with Kick Game to design and install flagship stores in key cities including London, Birmingham, Liverpool, Leeds, Manchester, Newcastle, and Milan.
Our ongoing relationship with the brand reflects our ability to consistently deliver high-impact retail spaces, quickly and efficiently — tailored to each location while maintaining brand consistency.
_Concept Design
_3D Design
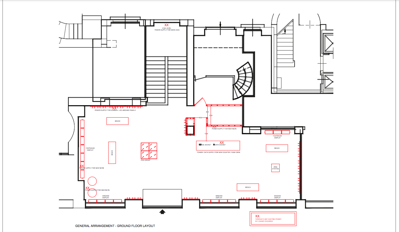
_2D Design
_Technical Development
_Production
_Project Management
_Installation

We worked closely with Kick Game from the outset, and as their product was mainly colourful and bright, we designed a clean and minimal store concept, allowing their product to be the hero.
Our Project Managers have successfully rolled out the store concept across the UK by coordinating all the required contractors and suppliers. They also handle all the logistics and necessary paperwork, which includes submitting Designs & Technical Drawings, RAMS, Insurance and RD1-RD4.

As well as the designs, we have provided all technical drawings for all the Kick Game stores. These include detailed drawings for producing bespoke furniture, fixtures, displays and signage, and the required technical packs for the approval process from centres/landlords & councils. The tech packs include 2D layouts, elevations, lighting plans and mechanical drawings.
We oversee all the production requirements for each Kick Game store, consisting of bespoke seating, backlit footwear displays, free-standing displays, mirrors, lit signage, steel rails and bespoke counters.

Our installation team have taken care of the construction phase of each Kick Game project, including structural work, floor installation, partitions, ceilings and lighting.
Following the construction phase, we have finished each retail space by installing all the fixtures, furniture, decor and merchandising displays. Our installation team consists of site managers, fitters, electricians, plumbers, decorators and flooring & signage specialists.
In addition, we've handled all the required 3rd party contractors, such as Sprinklers, HVAC, CCTV/ Security, Water Chlorination, Fire Alarms/Fire Safety and Building Control and provided all the necessary paperwork to grant them consent to trade.
In summary, we have been on an exciting journey with Kick Game, and our partnership has been a resounding success. We look forward to sharing more projects with Kick Game in the near future.
.jpg)


.jpg)






.jpg)
.jpg)
.jpg)
.jpg)


%20copy%202%20(1).jpg)
Alicia Thompson
- CEO
We deliver commercial interiors and construction projects for clients across a range of sectors.
Submit your details below and a member of our team will respond shortly to discuss your brief, budget and programme.
